AW-16942277428 Acorn Home Kit
Schutt Log Homes & Mill Works
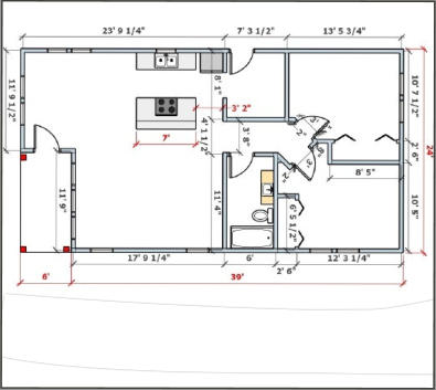
The Acorn-1080 sq ft

Acorn Home Kit

The Acorn Oak Home Kit is the perfect blend of charm, functionality, and efficiency, designed to meet the needs of modern homeowners. This thoughtfully crafted home features a warm, inviting interior paired with a timeless exterior design, making it ideal for a primary residence, guesthouse, or rental property.
Combining practicality and beauty in a compact footprint, makes This home kit an excellent choice for those seeking a cost-effective yet stylish home. With its durable oak construction and timeless design, this kit is built to last and offers endless possibilities for personalization.
Schutt Log Homes & Mill Works      816-506-5713
Schutt Log Homes & Mill Works
The Acorn-1080 sq ft

Acorn Home Kit

The Acorn Oak Home Kit is the perfect blend of charm, functionality, and efficiency, designed to meet the needs of modern homeowners. This thoughtfully crafted home features a warm, inviting interior paired with a timeless exterior design, making it ideal for a primary residence, guesthouse, or rental property.
Combining practicality and beauty in a compact footprint, makes This home kit an excellent choice for those seeking a cost-effective yet stylish home. With its durable oak construction and timeless design, this kit is built to last and offers endless possibilities for personalization.